Soluções Completas em Automação Industrial
Conteúdos e materiais
Este artigo contendo o Projeto de automação e telemetria de um reservatório de água tratada é o décimo da série “Tudo sobre telemetria do abastecimento municipal de água“.
Se você deseja elaborar e implantar um sistema de telemetria para os reservatórios e elevatórias de água e esgoto, ETAs e ETEs, estações reguladoras de pressão e pontos de macromedição, encontrará nessa série de artigos, todo o conhecimento necessário para projetar, construir e implantar sistemas completos.
Juntamente com os artigos, são fornecidos links para download de projetos elétricos completos dos painéis, assim como softwares Ladder para automação das estações e o software customizável SCADA com telas para até 10 reservatórios e 10 elevatórias de água, tudo absolutamente sem custo.
Normalmente, um reservatório tem por finalidade abastecer por gravidade um bairro ou região do município. Cabe à estação elevatória de água a função de manter o reservatório abastecido. Para tanto, a informação do nível do reservatório deve ser transmitida à elevatória para essa, por sua vez, comande o funcionamento dos grupos moto bombas de maneira a manter o reservatório sempre com o nível dentro dos níveis predefinidos de operação.
As unidades remotas de reservatório têm por objetivo ler os sinais de nível e vazão e reportá-los ao CCO. A informação de nível de cada reservatório é repassada à sua respectiva estação elevatória pelo sistema da comunicação via rádio, centralizado no CCO.
Nesse tipo de configuração o reservatório terá dois níveis (set points) pré-definidos pela operação:
Nível de liga: O nível de liga é mais baixo que o nível de desliga e é aquele nível, que quando atingido, indica para a lógica de comando da elevatória que o grupo moto bomba deve ser ligado.
Nível de desliga: O nível de desliga é mais alto que o nível de liga e é aquele nível, que quando atingido, indica para a lógica de comando da elevatória que o grupo moto bomba deve ser desligado.
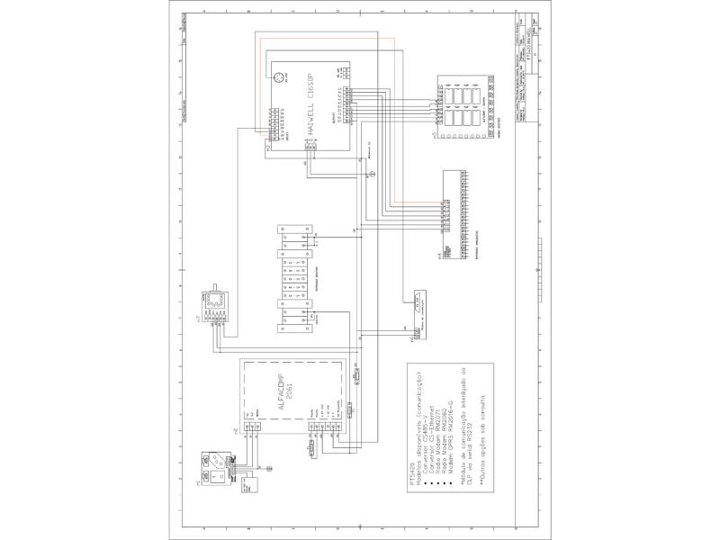
A figura a seguir apresenta a topologia simplificada de uma estação de reservatório.

Baseado no CLP Haiwell modelo C16SOP, o painel apresenta alto índice de integração, modularidade, facilidade de manutenção e protocolo MODBUS RTU mestre e escravo, resultando em uma montagem de alto desempenho e baixo custo. O quadro está programado para controlar e monitorar:
- Vazões de saída de água;
- Nível de reservatório;
- Invasão;
- Falta de energia;
- Painel aberto;















